(주)대성하이테크

제품소개

대성하이테크는 최고의 제품과 품질을 선도합니다.

WITH RUBBER 직선형

Rubber Table Top Chain은 고장력으로 요구하는 경사진 이송라인에 적합하며, Top Chain에 고무를 부착한 제품이다.

장점 높은 마찰계수를 가진다.. 25도의 경사까지 가능하다.

STRAIGHT DOUBLE HINGE

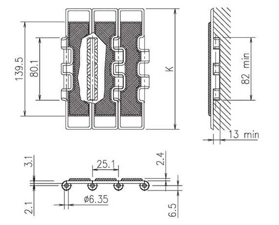
CHAIN TYPE CODE.NO PLATE WIDTH
K
WEIGHT SURFACE
FLATNESS
WORKING
LOAD
mm inch kg/m mm N
60 S 77 RM 1025 190.5 7.50 6.20 8900
60 S 77 RM
CODE.NO : 1025
PLATE WIDTH
K (mm)
PLATE WIDTH
K (inch)
WEIGHT
(kg/m)
SURFACE
FLATNESS (mm)
WORKING
LOAD (N)
190.5
7.50
6.20
8900
Standard length : 3.048m - 10 feet (80 links)